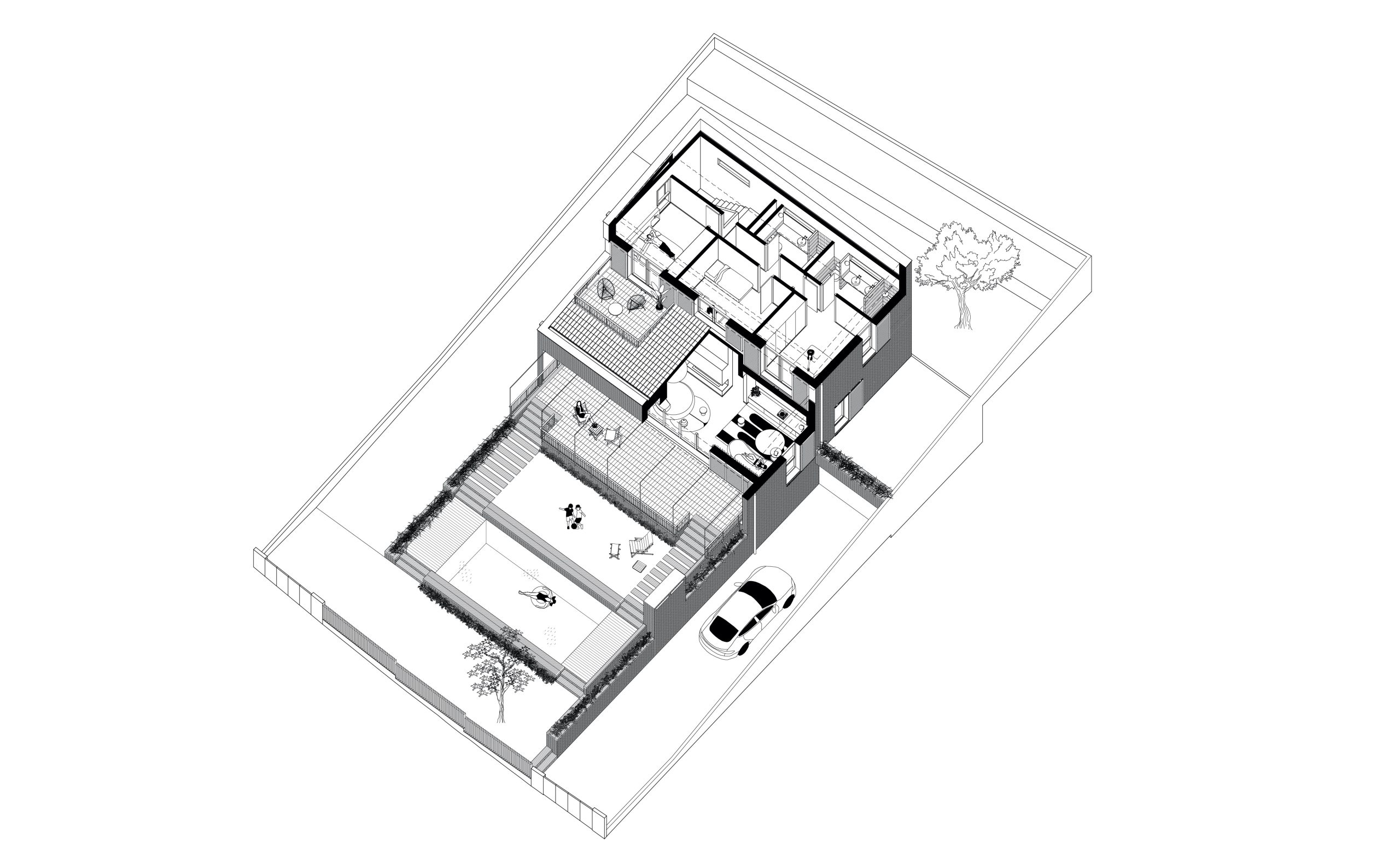
CASA RAJOLERIA

Colaboración en Sigla Studio

Cliente: Privado

Superfície: 235 m2

Situación: Sant Pol de Mar

Construcción: 2023